Update

Ohio State is in the process of revising websites and program materials to accurately reflect compliance with the law. While this work occurs, language referencing protected class status or other activities prohibited by Ohio Senate Bill 1 may still appear in some places. However, all programs and activities will be administered in compliance with the law as of June 27, 2025.

Skip to property results

Property Search

Additional Options:












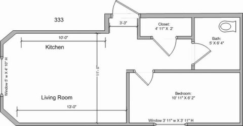
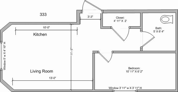
333 West Eighth Avenue C6

Listing Information

  • ID: 00003C04
  • Monthly Rent: $815.00
  • Move In Date: 08/01/2026
  • Move Out Date: 07/20/2027
  • Lease Term: 12 months
  • Short Lease Term: No
  • Sublease Permitted: No
  • Security Deposit: $815
  • Property Owner: Wolf Properties Apartments LLC

Property Details

  • Property Type: Studio/Efficiency
  • Location Sector: University District: Southwest
  • Level: Above Ground
  • City: Columbus, OH
  • Bedrooms: 1
  • Bathrooms: 1 full, 0 half
  • Max Occupancy: 1
  • Wheel Chair Access: No
  • Basement: No
  • Laundry: Laundry facilities in the building

Parking Information

  • Parking: Yes
  • Number of Parking Spaces: 0
  • Off-street Parking: Yes
  • Off-street Monthly: n/a
  • Off-street Yearly: n/a
  • On-street Parking: Yes
  • On-street Permit Required: No
  • Garage Parking: No
  • Garage Monthly: n/a
  • Garage Yearly: n/a

Amenities

  • Furnished: No
  • Fireplace: No
  • Air Conditioning: Window A/C
  • Dishwasher: No
  • Stove: Yes
  • Refrigerator: Yes
  • Security System: No
  • Backyard: No
  • Deck Or Porch: No
  • Other Amenities: Tenant pays for Electric and a flat rate fee of $25 per month for Water. There is no Gas. Wolf Properties Apartments maintains their own Maintenance personnel available for Routine Maintenance issues during normal business hours and Emergencies 24/7.

Pet Information

  • Pet Deposit: $200
  • Additional Pet Rent: $30
  • Additional Dog Rent: $0
  • Additional Cat Rent: $30
  • Pets Allowed: Yes
  • Dogs Allowed: No
  • Cats Allowed: Yes
  • Pet Deposit Refundable: Yes

Utilities

  • Water Included: No
  • Electric Included: No
  • Gas Included: No

Comments

Excellent student housing opportunity in a secure, quiet building located just 1 block from the OSU Hospital and Medical campus. Ideal for Medical, Dental, Nursing, Optometry and Pharmacy students. The building features locked, keypad entry on all Main doors, recently updated kitchens and bathrooms with wood grain laminate floors throughout. The laundry room on the first floor has coin operated washers and dryers. There is limited Off-Street parking which is available to all Tenants on a first come first serve basis. There is also plenty of On-Street parking as the street parking is available only by City permit for residents only. We will purchase 1 street pass for the each Tenant at the beginning of the school year. Currently leasing for next school year beginning August 1, 2026, earlier move in's over the Summer may be possible.

333 W 8th Ave Front

333 W 8th Ave Front

Magnify
KItchen

KItchen

Magnify
Living Room 1

Living Room 1

Magnify
Living Room 2

Living Room 2

Magnify
Living Room 3

Living Room 3

Magnify
Bath 1

Bath 1

Magnify
Bath 2

Bath 2

Magnify
333 W Eighth Ave

333 W Eighth Ave

Magnify

Interested in Renting This Property?

Wolf Properties Apartments LLC
Local: 614-402-1600
Mobile: 614-402-1600
Email: rentals@wolfproperties.net
Website: wolfproperties.net