Update

Ohio State is in the process of revising websites and program materials to accurately reflect compliance with the law. While this work occurs, language referencing protected class status or other activities prohibited by Ohio Senate Bill 1 may still appear in some places. However, all programs and activities will be administered in compliance with the law as of June 27, 2025.

Skip to property results

Property Search

Additional Options:












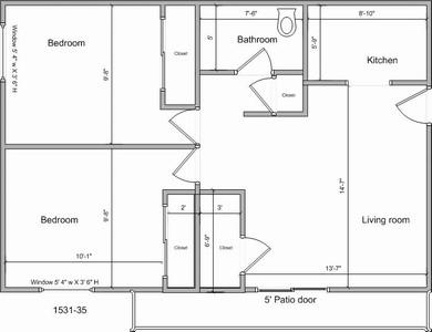
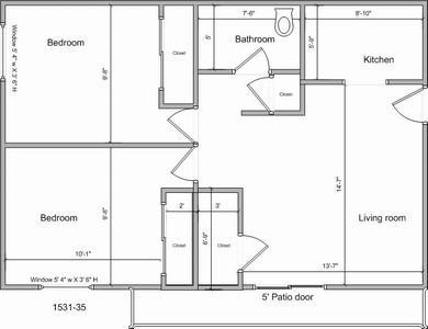
1531 Neil Avenue Unit C

Listing Information

  • ID: 00003E8F
  • Monthly Rent: $1,390.00 - $1,440.00
  • Move In Date: 8/01/26
  • Move Out Date: 7/20/2027
  • Lease Term: 1 year
  • Short Lease Term: No
  • Sublease Permitted: No
  • Security Deposit: $1390-1440
  • Property Owner: Wolf Properties Apartments LLC

Property Details

  • Property Type: Apartment
  • Location Sector: University District: Southwest
  • Level: Above Ground
  • City: Columbus, OH
  • Bedrooms: 2
  • Bathrooms: 1 full, 0 half
  • Max Occupancy: 2
  • Wheel Chair Access: No
  • Basement: No
  • Laundry: Laundry facilities in the building

Parking Information

  • Parking: Yes
  • Number of Parking Spaces: 1
  • Off-street Parking: Yes
  • Off-street Monthly: n/a
  • Off-street Yearly: n/a
  • On-street Parking: Yes
  • On-street Permit Required:
  • Garage Parking: No
  • Garage Monthly: n/a
  • Garage Yearly: n/a

Amenities

  • Furnished: No
  • Fireplace: No
  • Air Conditioning: Central A/C
  • Dishwasher: Yes
  • Stove: Yes
  • Refrigerator: Yes
  • Security System: No
  • Backyard: No
  • Deck Or Porch: Yes
  • Other Amenities: We will issue 1 permit to park in the Lot at NO additional charge. We will also reimburse Tenant for the cost of 1 on-street parking permit for each Unit to compliment the 1 off-street parking space that is included with each Unit. The unit has a nice large deck overlooking Neil Ave.

Pet Information

  • Pet Deposit: $200
  • Additional Pet Rent: $30
  • Additional Dog Rent: $0
  • Additional Cat Rent: $30
  • Pets Allowed: Yes
  • Dogs Allowed: No
  • Cats Allowed: Yes
  • Pet Deposit Refundable: Yes

Utilities

  • Water Included: No
  • Electric Included: No
  • Gas Included: No

Comments

Excellent student housing opportunity in a secure, quiet building located just 1 block from the OSU Hospital and Medical campus. Ideal for Medical, Dental, Nursing, Optometry and Pharmacy students. The laundry room on the lower level has coin operated washers and dryers, Change machine and Snack Vending machine Each Unit receives 1 Sticker to park in the Lot at NO additional charge. There is also plenty of On-Street parking as the street parking is available only by City permit for residents only. We are currently showing Units and renting for Fall beginning 8/1/26. Earlier move in over the Summer may be possible. Please call Joe at with any additional questions or to arrange a tour to see the property.

1531 Neil Avenue

1531 Neil Avenue

Magnify
1531 Neil Avenue

1531 Neil Avenue

Magnify
Living 1

Living 1

Magnify
Living 2

Living 2

Magnify
Kitchen 1

Kitchen 1

Magnify
Kitchen 2

Kitchen 2

Magnify
Bath 1

Bath 1

Magnify
Bedroom 1

Bedroom 1

Magnify
Bedroom 2

Bedroom 2

Magnify
Bedroom 3

Bedroom 3

Magnify

Interested in Renting This Property?

Wolf Properties Apartments LLC
Local: 614-402-1600
Mobile: 614-402-1600
Email: rentals@wolfproperties.net
Website: wolfproperties.net